Linnaeushof 6 PP, Amsterdam

Linnaeushof 6 PP, Amsterdam foto-0 blur Linnaeushof 6 PP, Amsterdam foto-0
Linnaeushof 6 PP, Amsterdam foto-1 blur Linnaeushof 6 PP, Amsterdam foto-1
Linnaeushof 6 PP, Amsterdam foto-2 blur Linnaeushof 6 PP, Amsterdam foto-2
Linnaeushof 6 PP, Amsterdam foto-3 blur Linnaeushof 6 PP, Amsterdam foto-3
Verhuurd
bekijk 4 foto's
bekijk 4 foto's
bekijk 4 foto's

Succesvol Verhuurd!

Deze woning is succesvol verhuurd. Ook verhuren of juist opzoek naar een huis? Keij & Stefels is je graag van dienst.

Huis verkopen Huis kopen
house € 110 p.m. ex.
house n.v.t
house n.v.t
house n.v.t

Omschrijving

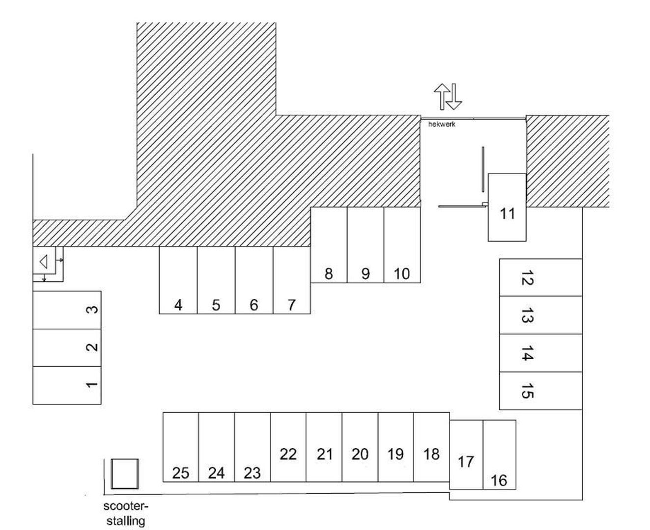
LINNAEUSHOF PARKEERPLAATS BESCHIKBAAR PER 1 JUNI 2024.

Gelegen in Watergraafsmeer, nabij Park Frankendael en aan de Middenweg. Gunstig gelegen ten opzichte van de uitvalswegen.

Parkeerplaats 6 en parkeerplaats 19 zijn beschikbaar per 1 juni 2024.

Huurprijs:
€ 110,00 excl. BTW per maand

Waarborgsom
Twee keer de maandhuur inclusief btw.

Huurperiode:
Minimaal 1 jaar, daarna voor onbepaalde tijd.

Huurcondities:
Huurprijzen zijn exclusief BTW. De huurprijs zal jaarlijks worden geïndexeerd op basis van het CBS consumenten prijsindex (CPI) Alle Huishoudens (2000 = 100).

Voorbehoud:
Deze informatie is geheel vrijblijvend en houdt enkel een uitnodiging in tot het doen van een bieding. Een overeenkomst kan dan pas tot stand komen na uitdrukkelijke en schriftelijke instemming van onze opdrachtgever.

Kenmerken

Aanvaarding

Prijs
€ 110 p.m. ex.
Status
Verhuurd
Oplevering
Per direct
Adres
Linnaeushof 6 PP
Postcode
1098 KH
Plaats
Amsterdam

Bouw

Soort bouw
Bestaande bouw

Actueel aanbod

Mauvestraat 51 H, Amsterdam Mauvestraat 51 H, Amsterdam Nieuw!
Mauvestraat 51 H Amsterdam € 2.450 p.m. ex.
oppervlakte59m²
kamers3 kamers
Nirwana 10, Amsterdam Nirwana 10, Amsterdam Nieuw!
Nirwana 10 Amsterdam € 2.000 p.m. ex.
oppervlakte61m²
kamers2 kamers
Wiborgeiland 116, Amsterdam Wiborgeiland 116, Amsterdam Nieuw!
Wiborgeiland 116 Amsterdam € 750.000 k.k.
oppervlakte94m²
kamers3 kamers